Reihenhaus-Trio in Emskirchen Jetzt schnell sein, 1 ist bereits reserviert!

Lage: 91448 Emskirchen | Bayern
Musterhaus in Ipsheim

Beschreibung

Modernes Reihenhaus – EH40, QNG-zertifiziert, barrierefreies Erdgeschoss & Balkon



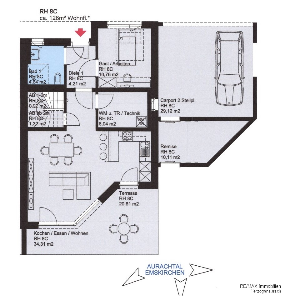
Dieses hochwertige Reihenhaus vereint modernes Design, energieeffiziente Bauweise und durchdachte Raumplanung auf ca. 130 m² Wohnfläche. Es erfüllt den Standard eines Effizienzhauses 40 (EH40) und ist QNG-zertifiziert (Qualitätssiegel Nachhaltiges Gebäude) – für höchste Ansprüche an Umweltbewusstsein, Zukunftssicherheit und Wohnkomfort.



Der EH40-Standard bietet zinsgünstige Förderungen durch die KfW.



Der QNG Nachweis ermöglicht zusätzliche Boni seitens der Regierung: z. B. profitieren Familien mit dem Kredit 300 von einem sehr günstigen Darlehen von 220.000 - 270.000 Euro, die Kredite 297 und 298 erhöhen sich auf 15.0.000 Euro pro Wohneinheit.



Besonders interessant für Kapitalanleger: Aufgrund der Sonderabschreibung von 5 %, zusätzlich zur linearen Abschreibung von 3 %, können in den ersten 4 Jahren 8 % jährlich abgeschrieben werden.



665.000,00 Grundpaket schlüsselfertig

+ 15.000 € = PV-Anlage

Lage und Verkehrsanbindung

Die Marktgemeinde Emskirchen – ca. 6.000 Einwohner – im Landkreis Neustadt a. d. Aisch - Bad Windsheim liegt sehr verkehrsgünstig direkt an der B8. Somit erreicht man die Metropolregion Nürnberg/Fürth/Erlangen in max. 30 Min. mit dem Auto. Der örtliche Bahnhof liegt an der Bahnstrecke Nürnberg-Würzburg und ist somit für Pendler perfekt. Neben 3 Kindergärten gibt es in Emskirchen noch eine Grund- und eine Mittelschule. Ärzte, Zahnärzte, Physiotherapeuten, zwei Apotheken und zahlreiche Einkaufsmöglichkeiten befinden sich direkt im Ort. Mehr Informationen finden sie auch auf der Homepage der Gemeinde www.emskirchen.de

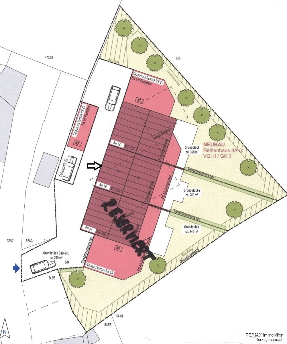
Lagepläne

Plan 0

Fakten

Objektnummer:
1032-3017-CV
Objekttyp:
Haus
Balkon:
1
Terrasse:
1
Wohnfläche:
125 m²
Grundstücksfläche:
390 m²
Zimmer:
5
Schlafzimmer:
3
Bad:
2
Baujahr:
2026
Zustand:
Erstbezug
Verfügbarkeit:
Verfügbar

Preisdetails

Kaufpreis:
660.000,00 €

Ansprechpartner

Christine Vogel
Anfrage
Max. 500 Zeichen
Ich habe die Datenschutzvereinbarung gelesen und verstanden, und ich stimme der Verarbeitung meiner persönlichen Daten wie darin beschrieben zu. *